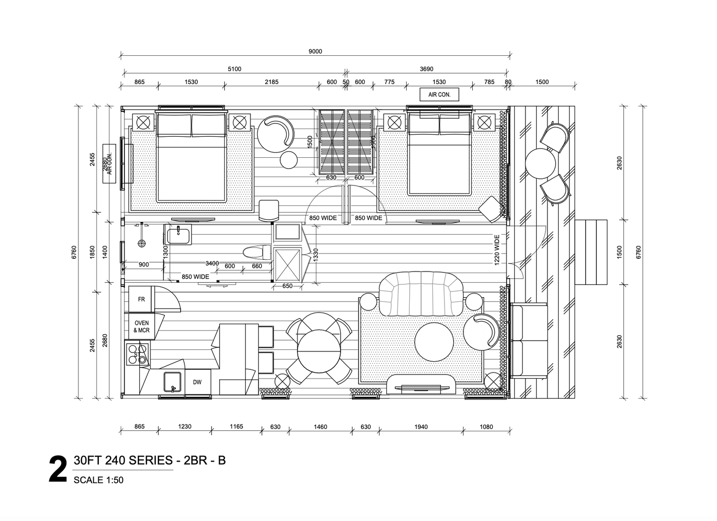
30ft 240 Series
-
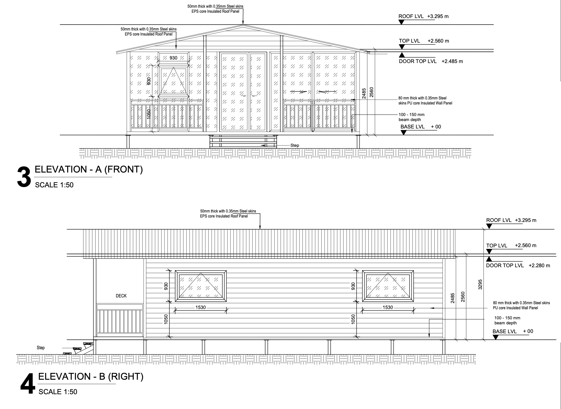
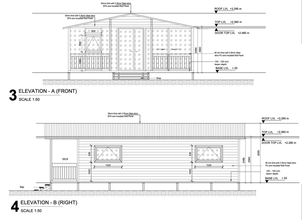
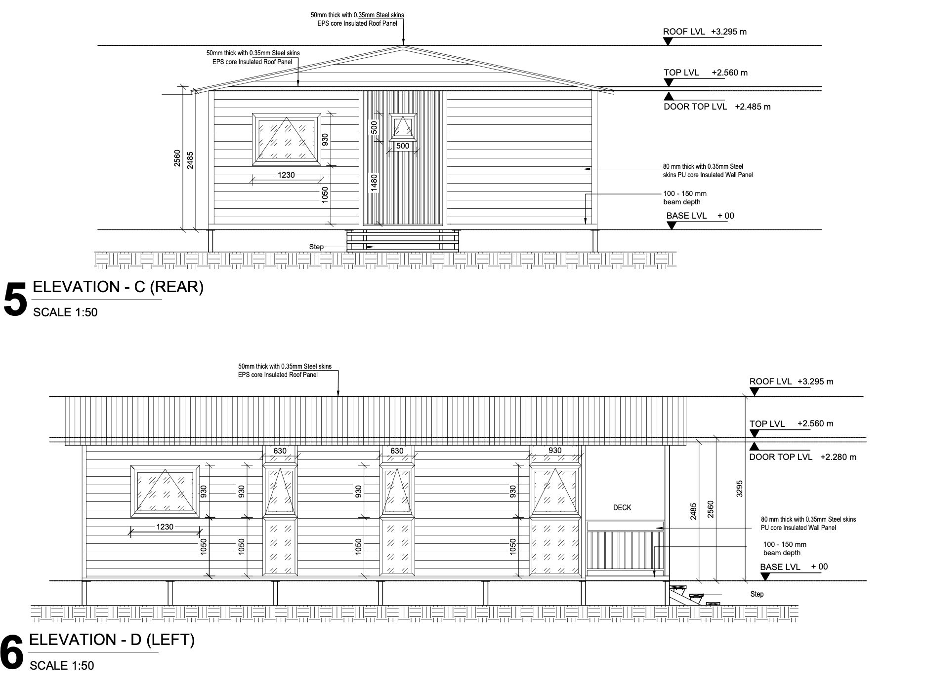
Length | 9000mm
Width | 6760mm
Package Height | 2560mm
Installed Height with Gable roof | 3300mm
*excluding height of footings
Weight | 8-10 tonnes
7 star + energy rating
NCC Compliant
C3 wind rating option available
-
ISO 9001 Certified Factory
AS/NZS 3678 Grade 350 Steel Used for Structural subframe.
Hager Electrical component used on Certified homes.
Australian engineered and certified polyurethane core composite panel
Fluorocarbon resin paint 100 pm
Moisture-Barrier & Vapour Control Layering
Internal Bathroom Waterproofing System
Multi-Point QA Photo Audit
Digital Production Scheduling
Assembly-Line Tolerance Checks
Factory Rain Test & Water Simulation
Container Loading SOP with Weight Balancing
Material optimised CAD to minimise Waste
-
Leadtime 30-45 Day shipping
1 week customs clearance and unpack
Slew crane depending on site requirements
Semi-truck delivery
*Disclaimer these are all estimations and recommendations
Floor Plans
1 Bed | 1 Bath
-
This floor plan is a bright and liberating spacious home featuring one bedroom with an expansive central living area, alongside a fully equipped kitchen and modern bathroom for everyday convenience. Its open layout encourages easy movement and a light, welcoming feel throughout.
-
Product Only | From $56,000
Class 1A Complete | From $129,000
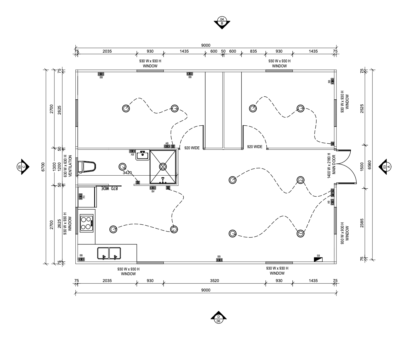
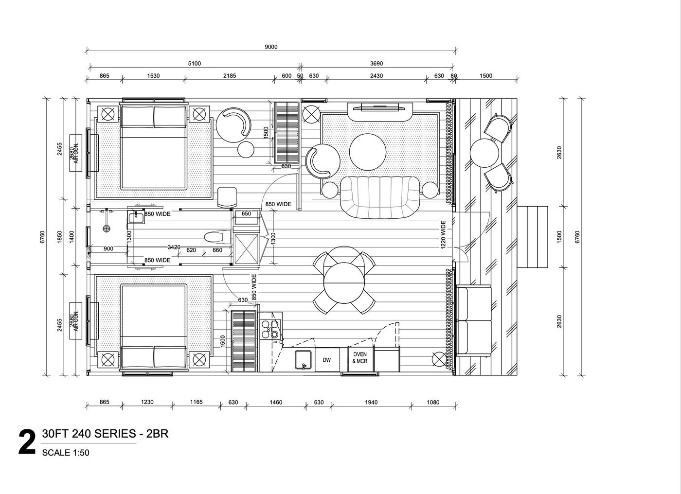
2 Bed | Shared Ensuite
-
Embrace this floor plan that feels grounded and harmonious. Featuring two bedrooms and a generous shared living area, this thoughtfully designed layout encourages togetherness while allowing space to retreat. With a central kitchen and bathroom easily accessible from both sides, the home is designed for balance, and natural flow.
-
Product Only | From $56,000
Class 1A Complete | From $129,000
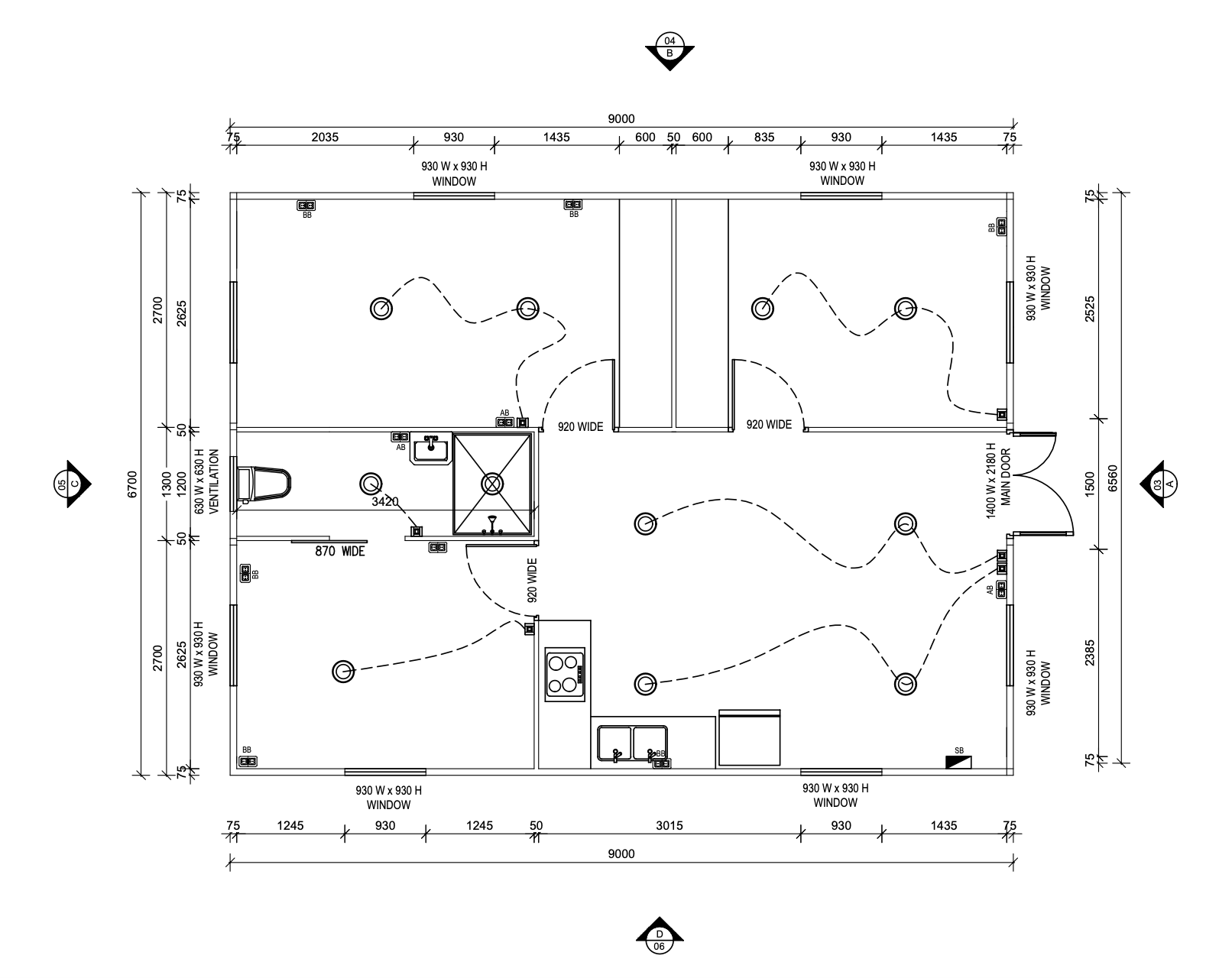
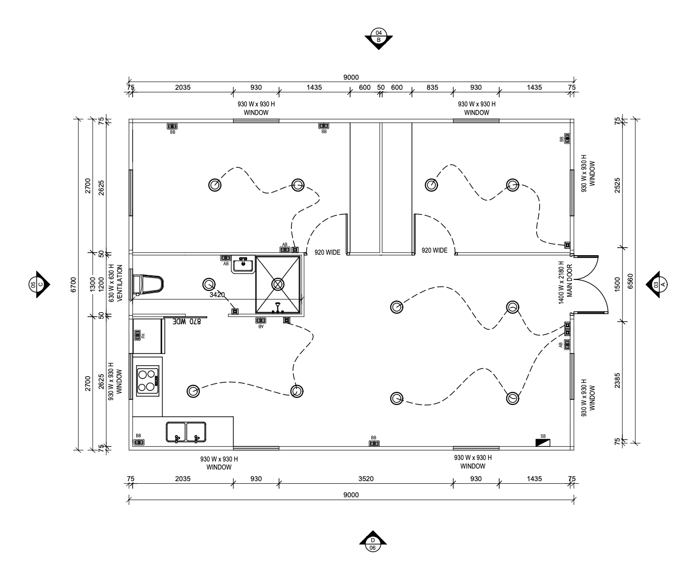
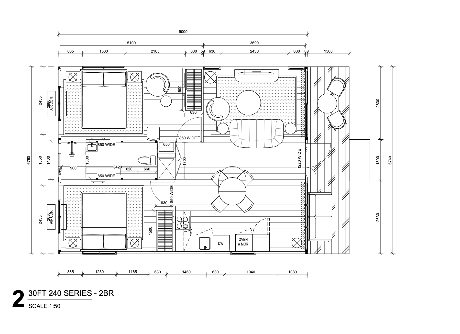
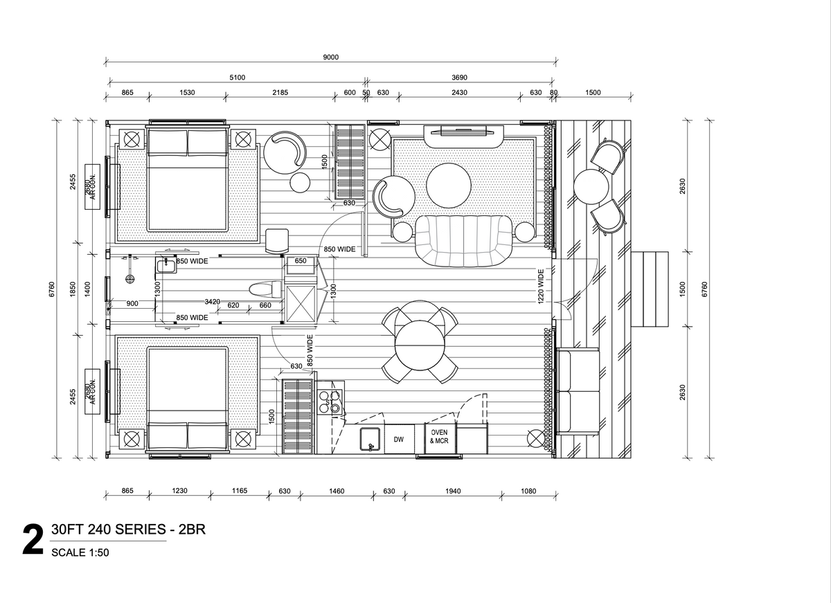
2 Bed | 1 Bath
-
This floor plan is bright and versatile featuring two private zones and a generous shared living area. With a central kitchen and bathroom, the layout offers everyday practicality and a warm, welcoming atmosphere, making it ideal for relaxed living and easy connection.
-
Product Only | From $56,000
Class 1A Complete | From $129,000
Would you like an estimate?
Class 1A Certified
Neo Livings Class 1a complete full turn-key modular homes are designed, built, and delivered ready for immediate living. As a Class 1a dwelling under the National Construction Code, each home meets strict Australian standards for safety, structure, and residential quality. Our full turn-key service means we manage every stage of the process from design, engineering and council approvals to site preparation, delivery, installation, and connection to utilities, ensuring a seamless, stress free experience. When your modular home arrives, it’s fully finished and ready for you to simply turn the key and move in.
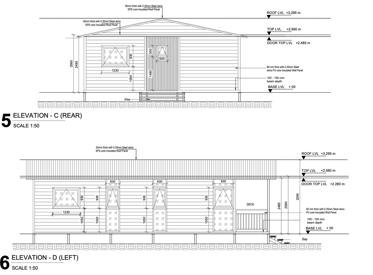
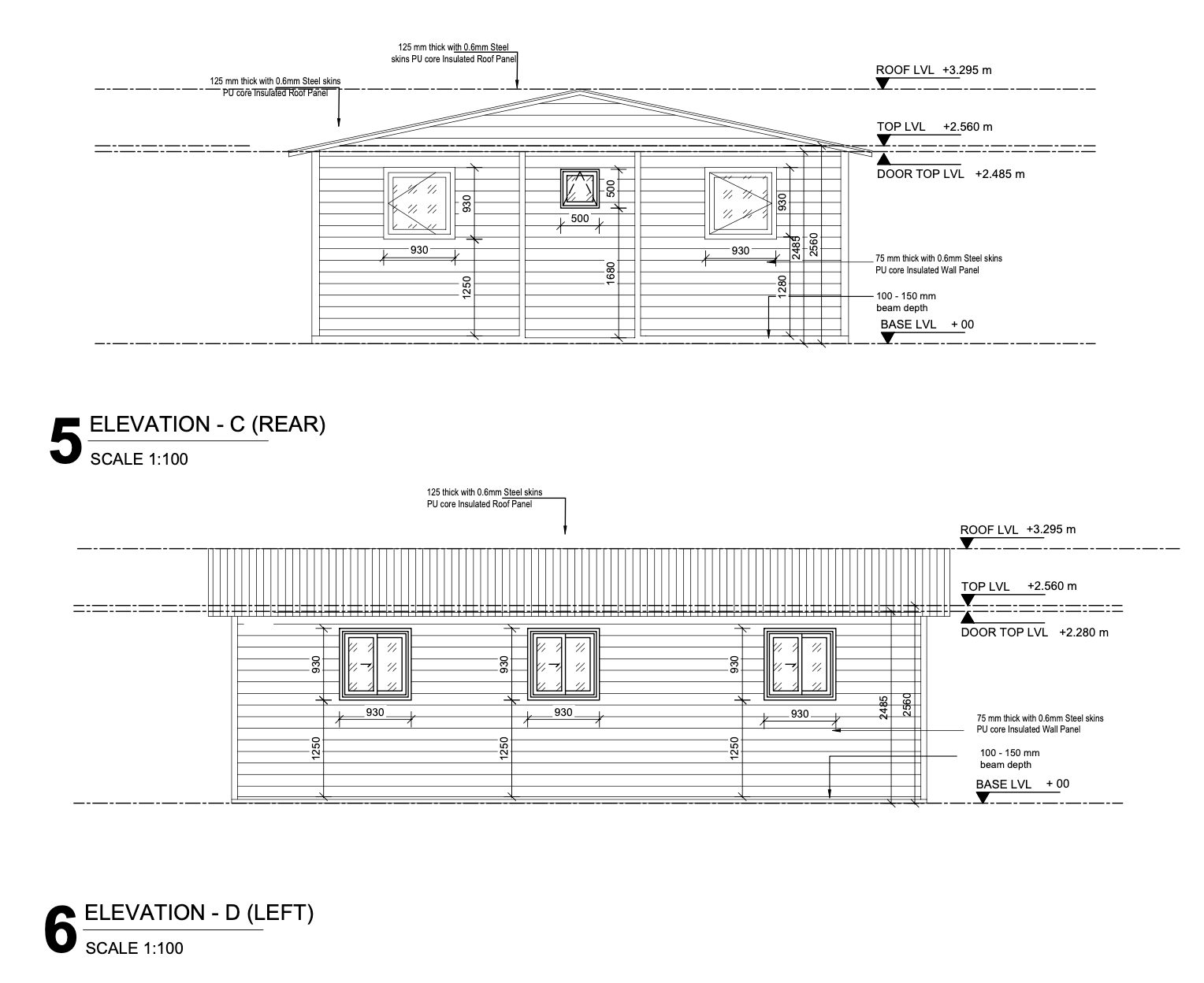
C3 Cyclone Rated
Neo Livings 240 series modular homes can be modified to be C3 Cyclone rated. Our C3 Cyclone rated homes have been engineered and certified to withstand severe tropical cyclone conditions, as defined under AS/NZS 1170.2. This rating applies to homes installed in high-wind coastal regions such as Northern Queensland, where wind speeds can reach up to 250 km/h. To meet C3 standards, the home’s structure, footings, and roofing systems are reinforced and designed to provide maximum protection and structural integrity during extreme weather events.

