30ft 220 Series
-
Length | 9000mm
Width | 6220mm
Package Height | 2480mm
Installed Height with Gable Roof | 3000mm *excluding height of footings
Weight | 5-7 tonnes
-
AS/NZS 3678 Grade 350 Steel Used for Structural subframe
Fluorocarbon resin paint 100 µm
Moisture-Barrier & Vapour Control Layering
Multi-Point QA Photo Audit
Digital Production Scheduling
Assembly-Line Tolerance Checks
Factory Rain Test & Water Simulation
Container Loading SOP with Weight Balancing
Material optimised CAD to minimise Waste
-
Leadtime 30-45 Day shipping
1 week customs clearance and unpack
Slew crane depending on site requirements
Semi-truck delivery
*Disclaimer these are all estimations and recommendations
Floor Plans
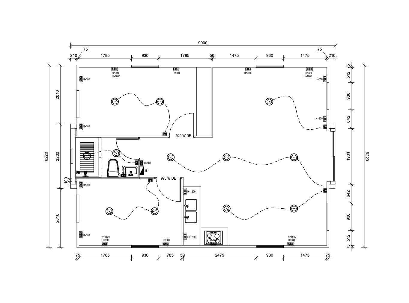
1 Bed | 1 Bath
-
This floor plan is a bright workspace designed for connection and creativity. This spacious office features an expansive communal area, perfect for collaboration or relaxation, alongside a fully equipped kitchen and modern bathroom for ultimate convenience. With an open layout that encourages movement and interaction.
-
Product Only | From $44,000
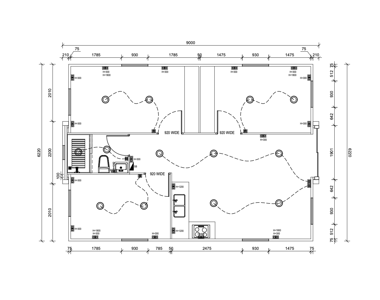
2 Bed | 1 Bath
-
This floor plan is a bright and versatile space featuring two private offices and a generous communal area. With a shared kitchen and bathroom, this layout offers practicality and a welcoming atmosphere, perfect for collaboration and everyday ease.
-
Product Only | From $45,500
2 Bed | Shared Ensuite
-
Embrace this floor plan as a workspace that feels grounded and harmonious. Featuring two spacious private offices and a generous communal area, this layout encourages connection and collaboration. With a shared kitchen and bathroom accessible from both offices, it’s designed for effortless comfort and natural flow.
-
Product Only | $45,500
Would you like an estimate?
Budget Friendly
Uncertified modular homes are a cost-effective option for uses like site offices, studios, storage spaces, or temporary accommodation, it’s important to note that additional approvals and upgrades would be required if you plan to use them as a legally compliant dwelling in the future.

